锘?!DOCTYPE html PUBLIC "-//W3C//DTD XHTML 1.0 Transitional//EN" "http://www.w3.org/TR/xhtml1/DTD/xhtml1-transitional.dtd">
鍚嶇О錛欳C2F鍨嬪彲鎷嗗紡鍙屾硶鍏版澗濂椾紶鍔涙帴澶?
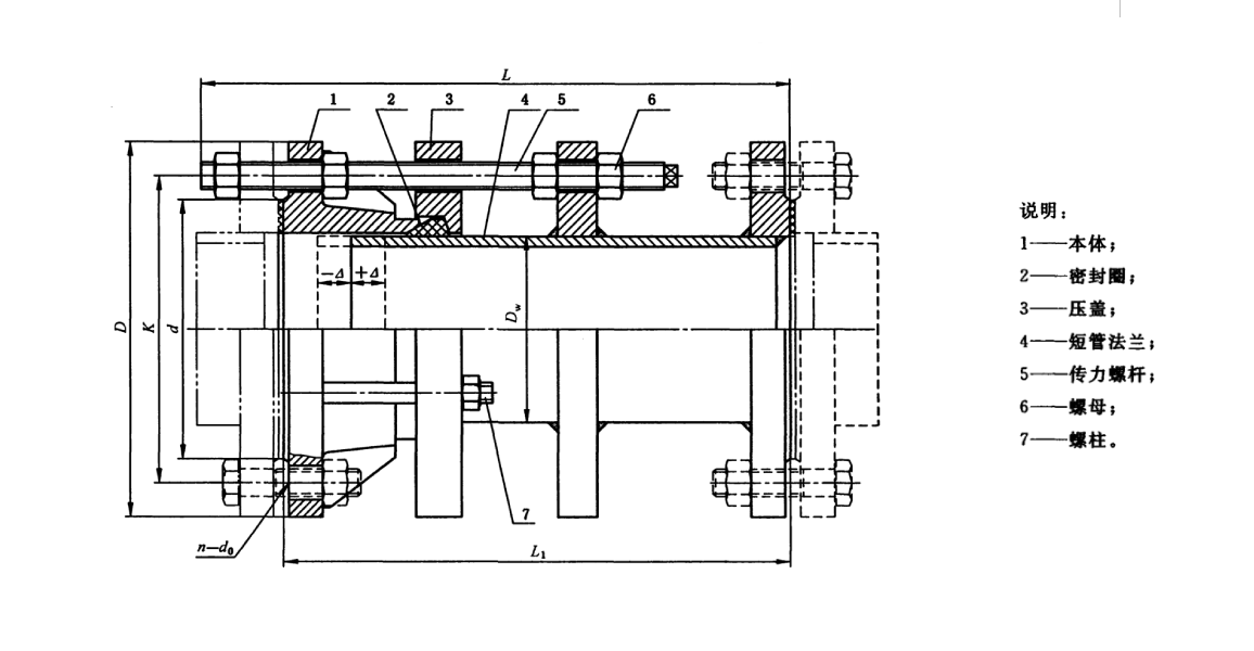
鏍囩錛?/strong>CC2F鍨嬪彲鎷嗗紡鍙屾硶鍏版澗濂椾紶鍔涙帴澶?/a>
鍙媶寮忓弻娉曞叞鏉懼浼犲姏鎺ュご閫傜敤浜庝袱杈瑰潎涓庢硶鍏拌繛鎺ョ殑綆¤礬涓紝瀹夎鏃惰皟鑺備駭鍝佷袱绔笌娉曞叞鐨勫畨瑁呴暱搴︼紝瀵硅渚濇鍧囧寑鎷х揣鍘嬬洊铻烘爴錛屼嬌鍏舵垚涓轟竴涓暣浣擄紝騫舵湁涓€瀹氱殑浣嶇Щ閲忥紝鏂逛究瀹夎緇翠慨鏃訛紝鏍規嵁鐜板満灝哄榪涜璋冩暣銆傚湪宸ヤ綔鏃跺彲鈥?

CC2F鍨嬪彲鎷嗗紡鍙屾硶鍏版澗濂椾紶鍔涙帴澶存€ц兘鐗圭偣錛?/strong>
鍙媶寮忓弻娉曞叞鏉懼浼犲姏鎺ュご鏄湪娉曞叞鏉懼琛ュ伩鎺ュご鐨勫熀紜€涓婂璁炬硶鍏扮煭綆″強浼犲姏铻烘潌鑰屾垚錛屾綾誨瀷鐨勮ˉ鍋挎帴澶翠笌鏉懼琛ュ伩鎺ュご鍜屾澗濂楅檺浣嶈ˉ鍋挎帴澶翠笉鍚岀殑鏄畠鐨勮ˉ鍋塊噺鏄寚鍦ㄥ畨瑁呭強鎷嗗嵏榪囩▼涓殑璋冭妭閲忥紝涓€鏃﹀皢鎵€鏈夌殑铻烘瘝鎷х揣錛屽畠鏄垰鎬ц繛鎺ョ殑錛屽彲浠ヤ紶閫掕醬蹇冨姏錛屼粠鑰屼繚鎶ら榾闂ㄣ€佹車絳夎澶囥€?nbsp;
CC2F鍨嬪彲鎷嗗紡鍙屾硶鍏版澗濂椾紶鍔涙帴澶撮€傜敤鑼冨洿
CC2F鍨嬪彲鎷嗗紡鍙屾硶鍏版澗濂椾紶鍔涙帴澶撮€傜敤浜庤緭閫佹搗姘淬€佹貳姘淬€佸喎鐑按銆侀ギ鐢ㄦ按銆佺敓媧繪薄姘淬€佸師娌廣€佺噧娌廣€佹鼎婊戞補銆佹垚鍝佹補銆佺┖姘斻€佺叅姘斻€佹俯搴︿笉楂樹簬250搴︾殑钂告苯鍜岄綺掔矇鐘剁瓑浠嬭川銆?/p>
鍏О閫氬緞 錛わ籍 | 綆″瓙澶栧緞 Dw | 娉曞叞榪炴帴灝哄 | 瀵嗗皝闈?/span> d | 鎬婚暱 L | 瀹夎 灝哄 L1 | 璋冭妭閲?span style="color: rgb(255, 255, 255); font-family: 寰蔣闆呴粦,Microsoft YaHei; font-size: 20px;">鈻?/span> | 璐ㄩ噺 kg | ||||
娉曞叞 澶栧緞 D | 铻烘爴瀛斾腑蹇冨渾鐩村緞 K | 铻烘爴 瀛斿緞 d0 | 铻烘爴 | ||||||||
| n錛堜釜錛?/span> | Th. | ||||||||||
65 | 76 | 160 | 130 | 14 | 4 | M12 | 110 | 450 | 400 | 20 | 17.9 |
80 | 89 | 190 | 150 | 18 | M16 | 128 | 460 | 20.6 | |||
100 | 114 | 210 | 170 | 148 | 28.4 | ||||||
125 | 140 | 240 | 200 | 8 | 178 | 37.1 | |||||
150 | 168 | 265 | 225 | 202 | 46.2 | ||||||
200 | 219 | 320 | 280 | 258 | 57.4 | ||||||
250 | 273 | 375 | 335 | 12 | 312 | 76.3 | |||||
300 | 325 | 440 | 395 | 22 | M20 | 365 | 485 | 420 | 25 | 94.6 | |
350 | 377 | 490 | 445 | 415 | 122.7 | ||||||
400 | 426 | 540 | 495 | 16 | 465 | 141.2 | |||||
450 | 480 | 595 | 550 | 520 | 158.1 | ||||||
500 | 530 | 645 | 600 | 20 | 570 | 186.2 | |||||
600 | 630 | 755 | 705 | 26 | M24 | 670 | 500 | 440 | 261.9 | ||
700 | 720 | 860 | 810 | 24 | 775 | 324.5 | |||||
800 | 820 | 975 | 920 | 30 | M27 | 880 | 680 | 600 | 30 | 516.7 | |
| 900 | 920 | 1075 | 1020 | 980 | 570.3 | ||||||
| 1000 | 1020 | 1175 | 1120 | 28 | 1080 | 658.8 | |||||
| 1200 | 1220 | 1405 | 1340 | 33 | 32 | M30 | 1295 | 750 | 650 | 984.4 | |
| 1400 | 1420 | 1630 | 1560 | 36 | 36 | M33 | 1510 | 1273.1 | |||
| 1600 | 1620 | 1830 | 1760 | 40 | 1710 | 770 | 670 | 1767.2 | |||
| 1800 | 1820 | 2045 | 1970 | 39 | 44 | M36 | 1920 | 1981.7 | |||
| 2000 | 2020 | 2265 | 2180 | 42 | 48 | M39 | 2125 | 830 | 700 | 2483.4 | |
| 2200 | 2220 | 2475 | 2390 | 52 | 2335 | 860 | 730 | 3086.3 | |||
| 2400 | 2420 | 2685 | 2600 | 56 | 2545 | 3456.4 | |||||
| 2600 | 2620 | 2905 | 2810 | 48 | 60 | M45 | 2750 | 1000 | 840 | 40 | 3844.3 |
| 2800 | 2820 | 3115 | 3020 | 64 | 2960 | 4307.8 | |||||
| 3000 | 3020 | 3315 | 3220 | 68 | 3160 | 4738.1 | |||||
| 3200 | 3220 | 3525 | 3430 | 72 | 3370 | 5134.7 | |||||
| 3400 | 3420 | 3735 | 3640 | 76 | 3580 | 5534.0 | |||||
| 3600 | 3620 | 3970 | 3860 | 56 | 80 | M52 | 3790 | 6156.0 | |||
濡傞渶鏈€鏂版暟鎹鑱旂郴鍦ㄧ嚎瀹㈡湇
娌沖崡鑹紬綆′笟鏈夐檺鍏徃 鎵嬫満鍙鳳細18638277136 鍥鴻瘽錛?371-64018718 浼犵湡錛?nbsp;0371-64018718 閭錛?50165323@qq.com 鍦板潃錛氬琺涔夊競瑗挎潙闀囪タ鏉?nbsp; 緗戝潃錛?a href="http://www.binzhiwu.cn" target="_self">http://www.binzhiwu.cn